國標離心泵的主要功能零部件
發布時間:2013-4-6 11:51:08 來源:海坦泵業 點擊次數:5510
葉輪:
離心泵的葉輪是使液體獲得能量的主要部件。其形式有閉式、半開式及開式三種,如圖3-10所示,
.jpg)
圖3-10  離心泵葉輪形式
(a)閉式葉輪:(b)半開式葉輪: (c)開式葉輪
通常有鑄造加工而成。閉式葉輪有前蓋板、后蓋板,葉片與 輪轂等組成。半開式葉輪無前蓋板開式葉輪無前后蓋板,葉輪中的葉片有圓柱形(單向彎曲)和扭曲型(雙向彎曲)之分。閉式葉輪的平面投影如圖3-11所 示。葉輪流道面積要求變化均勻,流道中心是切圓形的連線。葉輪結構如圖3-12所示。
.jpg)
圖3-11   葉輪平面投影圖
泵軸:
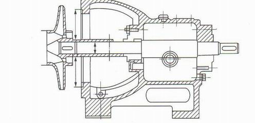
泵軸是傳遞功率和力矩的主要零件,,懸臂泵的葉輪裝在軸的一端,另一端裝支承。中小型多級泵一般采用用平軸,葉輪滑配的軸上,用短鍵傳力,如D300泵泵軸,大型泵有的采用階梯軸,葉輪用熱套法裝在軸上,葉輪與泵軸間無間隙,不會軸間竄水或沖刷,但拆裝比較困難,如OK5F37泵泵軸。
泵軸與葉輪等組裝在一起后,用鎖緊母固定,成為高速旋轉的轉子。在泵組裝前要進行小裝,檢查轉子各位的徑向跳動量,如果過大,泵在運行中就容易產生振動和研磨,應該設法消除,對于分段多級泵,需對轉子部件做組裝檢查并進行動平衡檢驗:對于懸臂泵,需對托架部件做組裝檢查,其裝配圖如圖3-13、圖3-14所。
.jpg)
圖3-12  葉輪結構圖

圖3-13   分段式多級泵轉子裝配圖
.jpg)
圖3-14   懸臂式托架部件組裝圖
吸入室
吸入室的作用是將吸入室、環形吸入室管中的液體均勻地似*小的流動損失引入葉輪。吸入室有三種:錐形吸入室、螺旋形吸入室。
錐形吸入室如圖3-15所示。其末端圓滑地度過到葉輪入口直徑,錐度7°~18°,它能在葉輪入口前造成不大的液流加速度,使葉輪前流速均勻,流動損失很小。小型單吸單級懸臂式離心泵多采用此種結構。圓環形吸入室如圖3-16所示。吸入流道過流面積逐漸縮小,圓環中液流速度略小于葉輪入口速度,以保證液體進入葉輪時有一個不大的加速度。這種吸放室結構簡單,軸向尺寸短,但液體進入葉輪時有沖擊和旋流損失,常用在單吸分段式多級離心泵中。
.jpg)
圖3-15 錐形吸入室                                      圖3-16  圓環型吸入室
螺旋形吸入室如圖3-17所示,其優點是液體進入葉輪流動情況較好,速度比較均勻,但液體進入葉輪前已有預旋,對比轉數大的泵,揚程損失比較明顯,雙吸單吸泵和和水平中開式多級泵一般采用此種結構。
.jpg)
圖3-17   螺旋形吸入室
下一條離心泵理論分析技術文章:離心泵葉輪設計理論及分析http://www.talorbrand.com/Article/T2/201.html
                    
							下一個:國標離心泵的組配的運行調節
					  
                  
					  
               
 
		